蒲氏居传统人居文化传承馆

传承+实践 人居文化智慧

文化交流联系电话:155-2805-2725

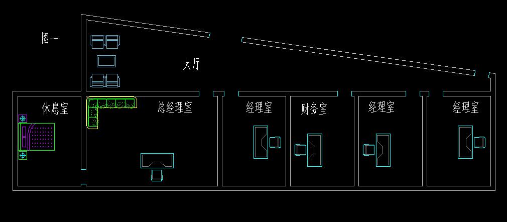
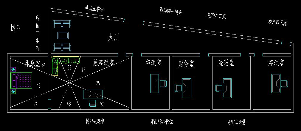
成都柳先生公司办公室风水布局案例

实际上风水大师所说的风水学就是地球物理学、水文地质学、办公室风水自然学、宇宙星体学(星象学) 、办公桌风水学、环境景观学、建筑学、生态学以及人体生命信息学等多种学科综合一体的一门自然科学。

其宗旨是审慎周密地考察、了解自然环境,顺应自然,有节制地利用和改造自然,创造良好的居住与生存环境,赢得最佳的天时地利与人和,达到天人合一的至善境界。

 

风水大师蒲家逸认为,其实“风水”就象空气一样,无所不在的存在我们每个人的身边,也许您今天感觉到阳光灿烂,精神舒畅,认为是“身体好,心情好”的缘故,其实您此时此刻有这样的状态和您目前所处的办公环境位置是很有关系的;

又或许您感觉公司生意不错,和您擅长经营管理有关,和您与人为善分不开,其实公司选址的好坏,位置的优劣从一开始就决定了您所处的“环境”,它才是首先决定您生意将来发展的好坏的首要原因!

 

办公室风水座位不能正对厕所门:

厕所是秽气聚集之地,而厕所门就是秽气排出之处,长期在厕所门附近,或正对着厕所门的人,会因吸了过多的秽气而生病。如不能避免,可以在厕所和办公桌风水座位间加装一道屏风或大型阔叶植物,多少可以挡掉一点秽气,而且厕所门也必须随时关上。和厕所一样,垃圾桶或杂物堆,也是秽气的来源,避之则吉。

 

座位正前方不能作为动线:

风水大师建议座位正前方如是主要的动线,作为公司全员进出之路,那么一整天总会有人在自己面前进进出出的,这种来往流动的气场,也会干扰到磁场,让人精神不集中,久了也会感到心浮气躁,做事常出差错。

熟悉的办公桌风水境没有维持好景,反而每况愈下,虽努力经营,但效益还是日渐式微,不见好转。反观管理方式和经营策略并无问题,这时候您需要专家指点办公室风水环境摆设。

从风水的原理来看,宇宙天地是平衡有秩序有规律地运行的,只要空间的安排适当均衡,便能顺利运作,在空间安排上,总负责人应将坐位安排在最后面的位置,才会有领导的架势和权威,领导能力才能发挥总负责人不宜在员工前方,或房屋前方。

 

总经理一定要在员工后面,才能发挥领导效果。

总经理不宜坐员工前面或房屋前段,事必躬亲,领导不力。

总负责人的位子在员工前面,坐位又背着员工,不但事必躬亲,而且阴私小人多,背后闲言闲语压力大,推展业务困难。

总经理的办公室风水一定要在办公室这个太极的吉位上,卦位要调旺,背后要有靠,不可有玻璃窗通道之类。更不可对着厕所,顶上不可有横梁,更忌讳房间不整齐有尖凸。

有的总负责人喜欢在办公室养鱼,放置盆景或供神,但一定要安排在吉位上。可根据总负责人的生辰择日在吉位上进行催贵催才的布局。

 

办公室装修风水第七大原则:

忌横梁压顶

办公桌风水有的人头上正好是一个横梁,有的人头上是低矮的吊顶,这些东西在风水大师的叫法“横梁压顶”,也就是长此以往,会让人在工作上产生压力,受到上司的责难,遭到小人的中伤,颈椎疼痛,运气阻滞。化解的方法:风水里葫芦起化病、收煞气的作用,去工艺品店买几根带葫芦的装饰藤缠绕在上面,既美观又化了横梁压顶的煞气。

 

办公室装修风水第八大原则:

如何正当的旺“桃花”

很多人经常开玩笑问朋友:“最近有没有桃花运啊?”其实风水大师常说命带桃花的人是指人长得漂亮,有文学或文艺方面的天赋,因为人优秀所以轻易得到异性的青睐。但此桃花是指正当的桃花,桃花运不旺的人可以在自己桃花位布局,从而摧旺自己的异性缘,而不正确的摆设会给自己带来桃花劫。

企业公司办公选址的三大原则

1、整体系统原则

整体系统论,作为一门完整的科学,它是在本世纪产生的;作为一种朴素的方法,充分注意到环境的整体性。 整体原则是风水学的总原则,其他原则都从属于整体原则,以奉原则处理人与环境的关系,是现代风水学的基本点。

 
 
2、因地制宜原则

因地制宜办公桌风水,即根据环境的客观性,采取适宜于自然的生活方式。中国是个务实的国家,因地制宜是务实思想的体现。使人与建筑适宜于自然,回归自然,返璞归真,天人合一,这正是风水大师学的真谛所在。

 3、依山傍水原则

依山傍水是办公室风水学最基本的原则之一。山体是大地的骨架,水域是万物生机之源泉,没有水,人就不能生存。考古发现的原始部落几乎都在河边台地,这与当时的狩猎和捕捞、采摘经济相适应。

填写您的项目需求给我们。

*请认真填写需求信息,我们会在24小时内与您取得联系。